圧密状地盤改良 SST工法とは

SST工法の名称

申請名称 置換式柱状地盤改良工法
一般名称 置換式締固め工法
固有名称 圧密地盤改良SST工法

SST工法の概要

SST工法は、地盤を円柱状に掘削し、地上に排出した掘削土に追加砂とセメント系固化材(以下固化材と称す)を混合した改良土を作製し、この改良土を独自開発のオーガを用いて水平および鉛直方向に締固めながら削孔に充填することで、柱状改良体(以下コラムと称す)を築造する地盤改良工法です。

SST工法の特徴

SST工法の特徴

SST工法の特徴は、掘削土と削孔から土層・土質・水位等を目視確認し、土質構成に適合した配合量の改良土を作成するところと、土中内に残材する不適物(ゴミ、ガラ等)を撤去することにより高品質を保てるところ、および特殊オーガの機構により水平鉛直方向に締固めることによってコラム先端の軟弱層に支持地盤を構成すると共にコラム周辺の地盤の反力を高め強い摩擦力を発現するところにあります。

SST工法の利点

1.コラム先端に支持層を必要としない→詳細をPDFで見る

2.電気水道等の仮設を必要としない→電気水道のない場所でも施工可能

3.基本的に残土が発生しない→残土解説の詳細をPDFで見る

4.低コスト→コラム支持力が強く価格が安い

適用範囲

(1)適用建築構造物

・コラム1本に対する 要求支持力220kN/本 以下

・液状化対策 せん断力を利用した連壁リング方式

 

(2)適用土質

・砂質土

・粘性土

・ローム

・有機質土(高有機質土、腐植土含む)

改良深度

施工地盤面より8.5m以下(12m以内)

コラム長

2~8.5m(12m以内)

施工機械

穴掘建柱車改 3~5t

油圧ショベル 0.1級(必要に応じ相番0.4級)

施工方法

1)掘削

鉛直ブレード(A・B)で100mm以上の土塊が発生しないように、オーガの掘削速度を1回転あたり100mm以下の正回転で掘り進み、掘削した原地土を水平ブレードで地上に搬出しながら計画深度まで掘り進む。この際に土層土質、不適物、水位を確認するとともに試験打設の結果と比較しながら掘削を行う。

掘削

2)改良土作成

掘削土の体積を油圧ショベルのバケットで10杯(0.6m²)を目安として計量し、これを敷鉄板上で4サイクル以上混合する。混合した掘削土に所定量の固化材と追加砂を加え、掘削土と同様に油圧ショベルで4サイクル以上混合して改良土を作製する。

改良土作成

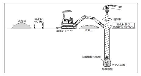
3)先端地盤処理

掘削完了後オーガを引き抜き目視で孔壁の自立、孔内水位等の確認を行う。次に先端地盤のスライム等を処理するために固化材と追加砂の先行投入を行なう。次に削孔に戻したオーガで攪拌(逆転10回、正転10回、逆転10回以上)を行い、逆回転で締固めて先端地盤の処理を行う。

先端地盤処理

4)改良土の投入

先端処理終了後、混合された改良土を逆回転している水平ブレードに徐々に載せ、先端の鉛直ブレードに送り込んでいく。

5)水平および鉛直方向への締固め

搬入された改良土は鉛直ブレードで鉛直方向と水平方向に締固められ、コラムが築造されていく。そして水平鉛直方向への締固めが限界に達するとオーガは締固められた反力で徐々に上昇を始める。

水平および鉛直方向への締固め

6)コラムの築造過程

常に加圧状態にあるオーガが締固めた先端地盤の反力で上昇し始めるが、その上昇速度は、軟弱層では水平方向の締固めに時間がかかり上昇速度は遅くなるが、逆に締まった層では少し早くなる。

コラムの築造過程

7)コラム築造の完了

オーガが規定の高さまで上昇すると締固めの完了となり、ヘッド調整器具でコラムの高さを調整してレベルで確認後、養生覆土を行い、コラムの築造の完了となる。

コラム築造の完了